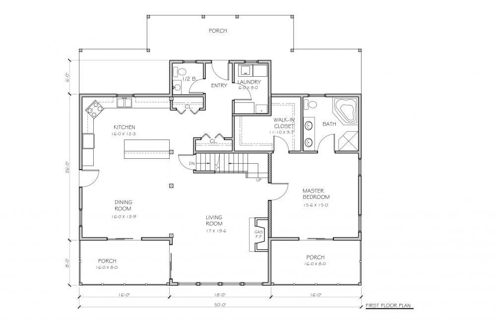
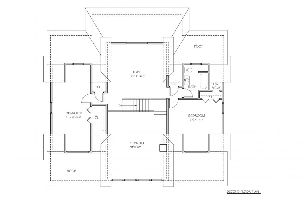
The Golden Eagle home will make entertaining guests a pleasure! With a large kitchen, dining room, and living room with a fireplace as the focal point, you may never want to leave home! An added bonus is the large master bedroom with a huge walk-in closet and bath with shower and soaking tub. The master bedroom also has a private porch overlooking your beautiful property! With a large loft and two extra bedrooms upstairs upstairs, this home is set up perfect for the family. We also have a design with a full walk-out basement that includes a fitness area, extra family room, and guest room with a private bath. Interested but want to make some changes, not a problem. Let us customize it to fit your specific needs!
The Golden Eagle Trails is located between Slate Run and Cammal in North-Central PA. You will enjoy the amazing views of the Pine Creek Valley. While this can be a strenuous hike, the views make up for all that hard work. After your first visit you will know why lots of folks call this the best day hike in Pennsylvania. Plan on two assents, one being 800 ft and the other over 1000ft. Visit www.pahikes.com for more information.





