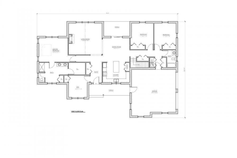
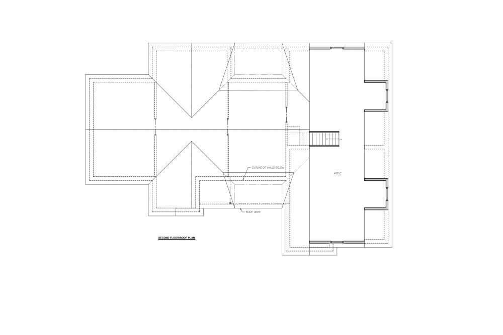
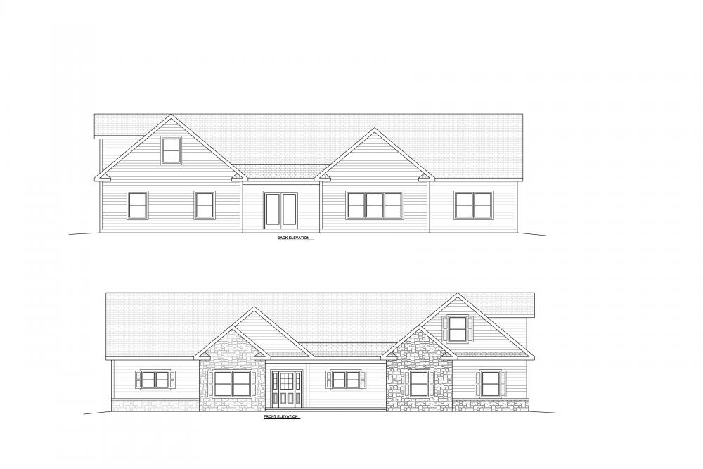
The Loyalsock is a single story home with the optional attic/bonus room over the garage. This home offers a spacious kitchen and dining room that opens up into the large living room with an optional fireplace. You will also find yourself at times enjoying your den for reading or office work. A large master bedroom and walk-in closet, and additional 2 bedrooms are with a separate bath make this the ultimate small family home. The additional bonus room offered above the garage could be used for guest bedroom, game rooms, office, etc. Let yourself be creative when finishing this room out! It’s not a problem to put a basement under this home, however, it was originally designed to be an at-grade home with the heat installed in the floor. We love to customize each home to your specific needs and dreams, so let us know just how we can make that happen.
The Loyalsock comes from the Native American name Lawi-Saquick, meaning “ Middle Creek”. The Loyalsock Trail is a 60 mile trail that roughly parallels the to the famous Loyalsock Creek. You will be passing waterfalls, lakes, ponds, and historic sites all along the trail. This is not a trail for weak in heart as you will be challenged at different points along the trip. Visit www.pahikes.com for more information and to plan your hike!




